Проект дома (Д-Кир-152)

Общая площадь
152,0 м2
  • Площадь
    жилая: —

    Размер: 9.2 x 13.4 м
  • Этажность: 2
  • Терраса
*цена за базовуюкомплектацию
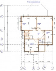
Первый этаж
Второй этаж
Вы можете прислать нам свой проект и мы бесплатно его посчитаем
ОТПРАВИТЬ
В комплектацию входит:
  • Доставка,погрузо-разгрузочные работы в пределах 100км (по Твери) или до МКАД (Для Москвы)
  • Сборка силовой части на Вашем участке
  • Биообработка деревянных конструкций и материалов;
  • Гидроизоляция цоколя – подкладочная в 2 слоя;
  • Стены – наружные и внутренние
  • Деревянные нагели
  • Межвенцовый утеплитель - льноджутовое полотно;
  • гвозди, скобы, затяжки, ерши, скользящие конструкции;
  • Высота 1 этажа – 3м, высота подъема мансарды – 1,5м;
  • Балки перекрытий с черновым настилом;
  • стропила и стропильные затяжки сечением 200 х 50 с обрешёткой из обрезной доски h=25 мм;
  • кровля (рубероид)

  • Фундаменты и цокольные этажи любой сложности
  • Кровельные работы любой сложности
  • Отделочные работы любой сложности (наружная и внутренняя чистовая отделка)
  • Инженерные работы любой сложности: ВК (водоснабжение и канализация),ОВК (отопление, вентиляция, кондиционирование),ЭС (энергоснабжение)
Проектирование и дизайн домов и бань

Намного легче ломать и строить - "на бумаге", поэтому перед тем, как начать строительство Вашего жилья или даже баньки - продумайте всё, что возможно именно на стадии проектирования. Всегда проще отталкиваться от того, что уже есть, будь то чернвоая версия проекта или набросок от руки - наши специалисты доведут эту информацию до рабочего проекта, визуализируют для вас в 3d виде. Внося правки и изменения на данной стадии - Вы не тратите время, Вы его рационально используете, а учитывая отстуствие ошибок при строительстве по проекту - экономите массу нервов и недель.

Монтаж/заливка фундамента

На данном этапе, исходя из проектных данных, а так же из состояния почвы на Вашем участке, мы совместно с Вами определяем тип будущего фундамента, согласуем время заливки и приступаем к непосредсвенному монтажу фундамента. Мы можем реализовать фундаменты любой сложности, от свайно-винтовых, до монолитных и ленточных.

Возведение силовой части

Силовая часть может быть выполнена из бруса (сухого, влажного или клееного), бревна (ручной рубки, оцилиндровки) или из лафета. Мы так же строим по каркасной технологии и из кипича, пеноблоков. В ряде случаев случается комбинированные строения, например дом из бруса с эркером, где эркер является каркасным. Или самый часто встречаемый варинт - первый этаж из кирпича, второй из дерева (брус/бревно).

Кровельные работы:стропильная система, монтаж кровли

После возведение силовой части мы приступаем к стропильной системе и монтажу кровли. Это может быть временная (черновая) кровля для обеспечения "тёплого контура", это может быть металлочерепица, гибкая черепица или цементно-песчаная.

Усадочные работы. Контроль процесса усадки.

В случае с кирпичем, каркасом и пеноблоками- усадка минимальна и проходит гораздо быстрее, чем с деревом. Если силовая часть выполнена из бруса или бревна - необходимо дождаться усадки. Правильная усадка закладывается на этапе монтажа силовой части - необходимо всё верно смонтировать, чтобы в процессе усадки (при её наличии) - всё пошло по запланированному и контролируемому сценарию. Для контроля усадки необходима установка домкратов и их регулировка по мере необходимости.

Создание тёплого контура

Тепловой контур дома - это та стадия его готовности, на которой Вы можете приостановить строительство на длительный срок, без ущерба для возведенного строения. На данном этапе особенно важно понять, для чего из из чего строится дом или иное строение.

Инженерные работы под ключ

Мы предоставляем весь спектр услуг, связанных с построением инженерных сетей и коммуникаций всех типов: систем водоснабжения и водоотведения, электроснабжения, кондиционирования, отопления. Так же мы можем смонтировать и настроить системы вентиляции и кондиционирования. Комфорт загородной жизни во многом зависит от того, насколько технически грамотно произведено проектирование и последующая прокладка коммуникаций. Важно заметить, что мы же проводим предварительное тестирование, пусконаладочные работы, подключение и программирование оборудования;

Отлелочные работы

Отделочные работы – финальный аккорд строительных работ. Правильная внутренняя и внешняя отделка ничуть не менее существенна, чем заливка фундамента или возведение крепких стен, ведь так хочется жить не только в прочном, но и красивом, и уютном доме! Немаловажно учитывать следующие моменты. Если каменные дома чаще всего можно отделывать практически сразу, то деревянному дому может потребоваться до 1 года на усадку (кроме домов из сухого бруса и клеёного, у них срок и степень усадки меньше).

Акции и новости